Лаб. 11. Робочі кресленики в КОМПАС-3D
Завдання. Побудувати:
1. робочі кресленики кожної деталі;
2. складальний кресленик зборки.
Обладнання. Навчальна версія КОМПАС-3D.
Рекомендації. Пройти уроки з КОМПАС-3D.
Подання – відіслати pdf-файл (прізвище + № лаб.).
Терміни - одразу чи упродовж 1 тижня.
Оцінювання: 3 бали (2 - присутність та виконання ; 1 – зарахування).
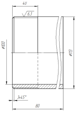
Фрагмент виконання

Запитання
Що називають інтерфейсом?
Які типи ліній передбачено в КОМПАС-Графік?
Які операції редагування кресленика передбачено в КОМПАС-Графік?
Вказівки
- 27 жовтня 2019, 19:52
Шрифти
Розмір шрифта
Колір тексту
Колір тла
Кернінг шрифтів
Видимість картинок
Інтервал між літерами
Висота рядка
Виділити посилання
Text Alignment